电缆工程量计算-批量测量更轻松
电缆工程量计算-批量测量更轻松
电缆工程量计算时,可以用CAD快速看图的【批量测量】功能,一键精准测量电缆长度,高效省力,大幅提升算量效率,是工程和造价人员的得力工具!
一、电缆
电缆,作为传送和分配电能之用,由于电缆线路具有运行可靠、不易受外界因素影响等优点,被越来越多地用于工业与民用建筑,特别是高层建筑的配电线路中。
二、电缆的分类
电缆线路的电缆按其结构及作用可分为电力电缆、控制电缆、电话电缆、信号电缆、射频同轴电缆;电缆按电压可分为低压电缆、高压电缆;电缆按芯数分有三芯电缆、四芯电缆、五芯电缆等。

三、电缆的计量规则
1.定额规则。
电力电缆敷设,按照设计图纸区分不同的电缆材质和敷设方式,以及不同的电缆规格、截面大小,以“100m”为单位计算工程量。
2.清单规则。

四、实例分析
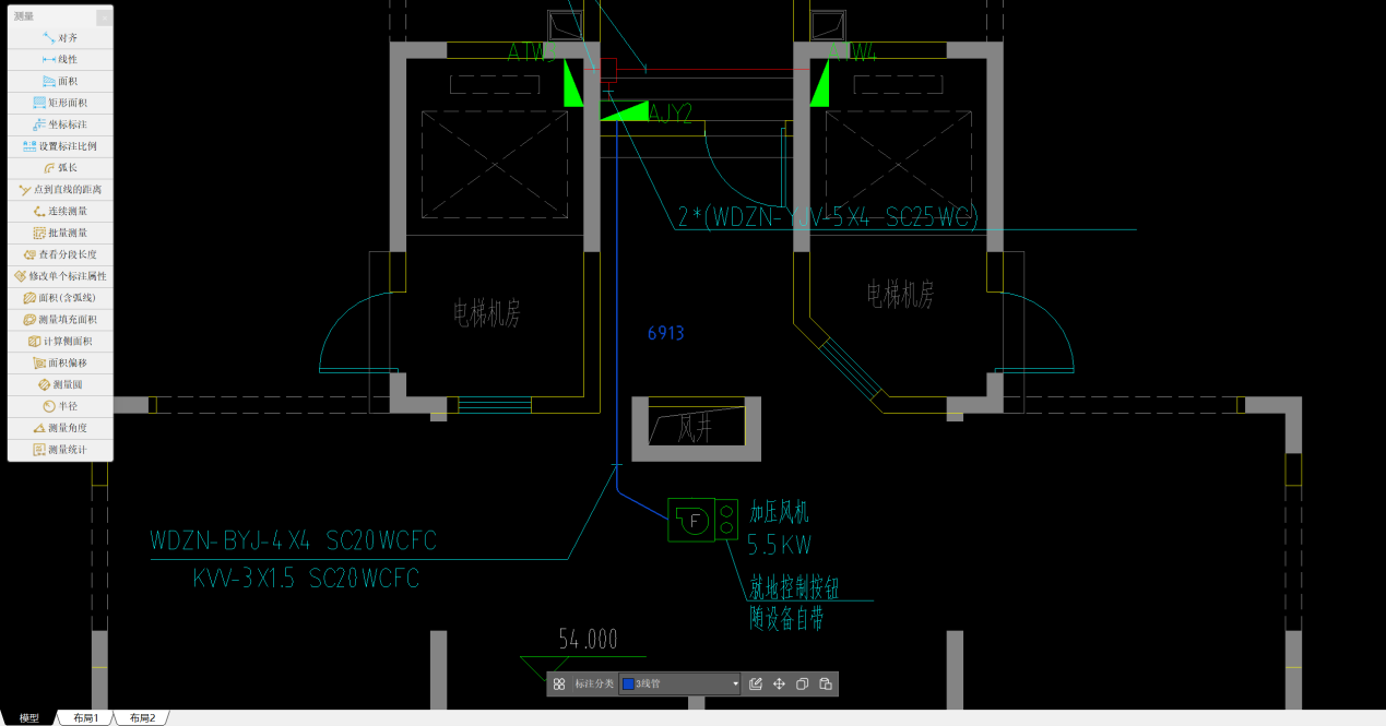
1.观察某住宅的配电箱系统图,确定AJY2的离地高度及尺寸信息。

2.用CAD快速看图查看图纸并计量
以AJY2-加压风机回路为例,使用软件的【批量测量】功能,点选该回路的线管,得到水平管长为6.913m。竖向管长为1.5m。则SC20管总长为8.413m。则WDZN-BYJ-4*4电缆长为:8.413+(0.5+0.6)(配电箱预留)+1.5(电缆终端头)=11.013m。

其它类型电缆也可依据此方法计量,读者可自行尝试。
电缆工程量计算,用CAD快速看图软件来量电缆长度。它能自动测水平管和竖向管,再加预留和终端头,快速算出总长,特别方便!
#电缆#计量#批量测量
0 个回答